En una de las mejores calles para tapear se encuentra este restaurante que hemos diseñado en Málaga, Comparte Gastrobar. Concretamente en calle Moreno Monroy nº6, 29015 Málaga.
Un restaurante que nace de la unión de Vanessa y Vito, dos personas con gran experiencia en el sector de la hostelería, que tenían en mente una idea clara para su negocio, y así nos lo transmitieron.
Para su primer restaurante en Málaga querían conseguir una imagen acorde con su producto, cocina gourmet para compartir, elaborada con productos locales, de la lonja y del mercado directos a la mesa.
En c2interioristas siempre planteamos los proyectos desde las necesidades del cliente, y una de los primeros aspectos que decidimos es la paleta de colores. En este caso elegimos para este restaurante de Málaga centro, una paleta de colores compuesta por colores corporativos, tonos tierra y azules.

En todos los proyectos hacemos que la paleta de colores utilizada para el diseño interior de un local esté presente tanto en los acabados como en los revestimientos, además del mobiliario, luminarias, etc. para que todo quede dentro de un conjunto con sentido.

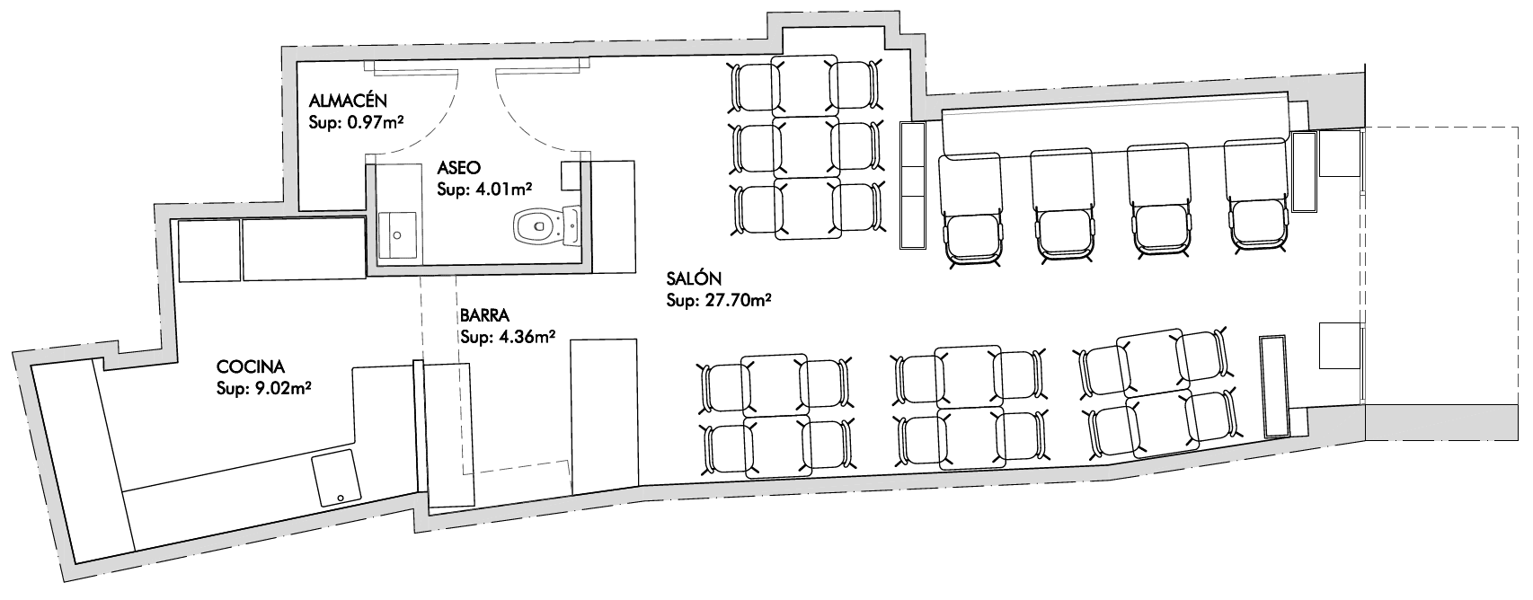
La reforma de este restaurante de Málaga fue parcial, ya que los propietarios no querían modificar la distribución original del local, por ello, para el proyecto de interiorismo nos centramos en aprovechar al máximo la distribución y potenciar la decoración interior.
Con una superficie útil de aproximadamente 30m² para salón, había que tener mucho ojo al elegir el mobiliario, un mobiliario con unas medidas contenidas hacen que el espacio parezca mas grande, para ello, elegimos mesas de 60×60 que es una medida lo suficientemente justa para no ocupar mucho espacio de salón y los suficientemente cómoda para dos comensales.

Quisimos dotar de un poco de dinamismo al diseño de este restaurante, por lo que decidimos jugar con el mobiliario, creando una zona de mesas altas y taburetes, una zona de mesas bajas con sillas y una zona con un banco corrido.

Introducimos un nuevo color para crear contraste con la paleta de colores elegida para el proyecto de interiorismo, un color mostaza que aplicamos en las tapicerías del mobiliario y las lámparas.

Este restaurante se encuentra ubicado en el casco antiguo de Málaga, por lo que sabíamos casi con total seguridad, que tras revestimiento de pladur que había en el local, encontraríamos los antiguos muros de ladrillos del edificio y teníamos la esperanza de que estuvieran en buen estado para poder dejarlos a la vista.
Tras demoler el pladur de las paredes observamos que una de ellas no tenía solución, por lo que repusimos el pladur, en el resto se encontraba en buen estado, aunque tuvimos que hacer un trabajo de saneado, cepillado y barnizado para obtener el resultado estético que buscábamos, incluso en una pequeña parte tuvimos que darle un revestimiento rústico con un enfoscado de cemento, ya que no tenía una buena estética.



